Gut geschnittene und ruhige 3-Zi.-ETW im Erdgeschoß, 74321 Bietigheim-Bissingen/Buch

Erdgeschosswohnung

179.000 €
Kaufpreis
3
Zimmer
64 m²
Wohnfläche ca.
1227
Objektnummer

Beschreibung

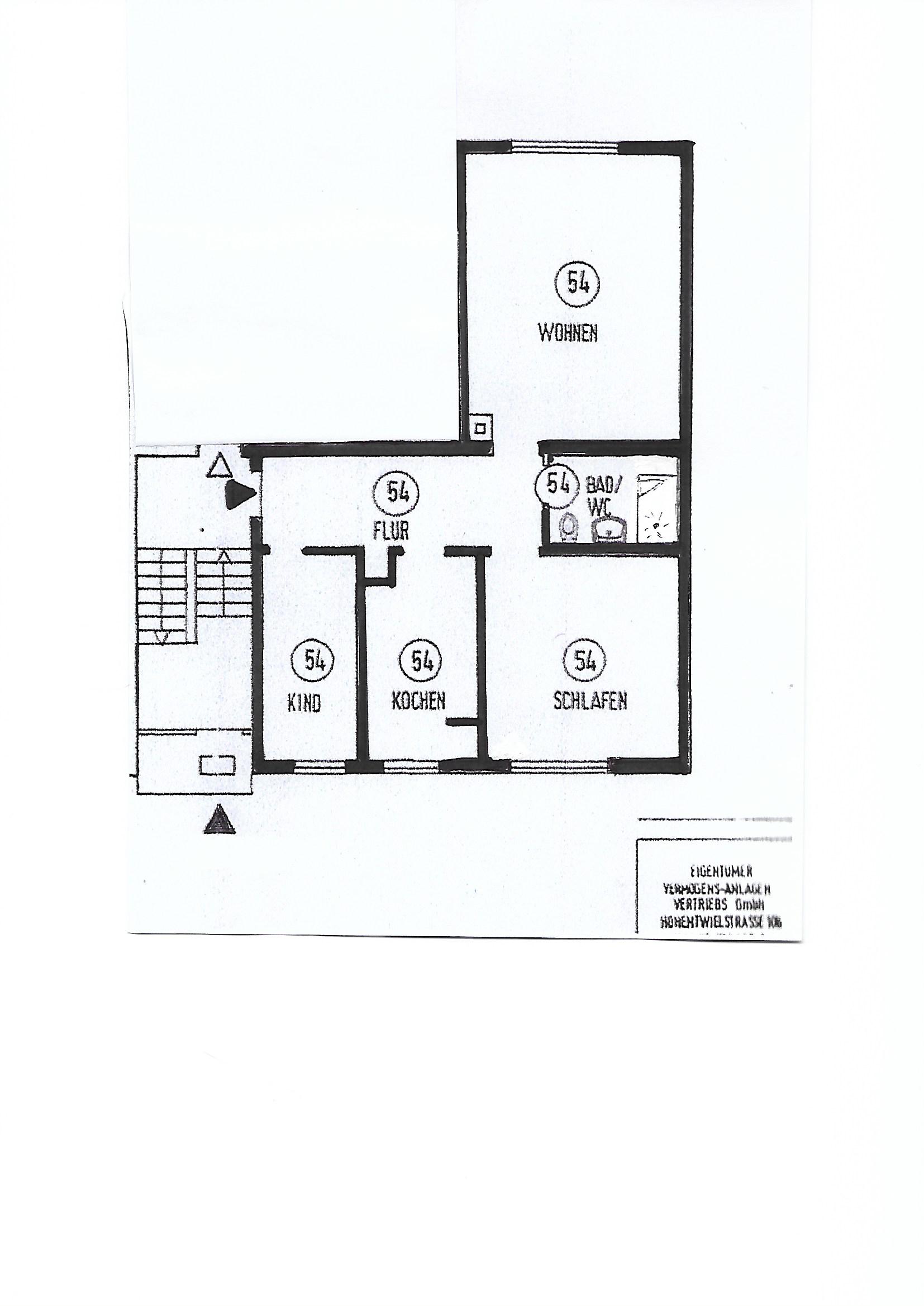
Diese gut geschnittene, freundliche 3-Zi.-ETW befindet sich in einer gepflegten und ruhigen Wohnanlage im EG. Die Wohnung hat einen Flur, einen Wohn-/Essbereich, ein Schlafzimmer, ein Arbeits-/Kinderzimmer, ein behindertengerechtes neueres Duschbad mit WC und eine Küche. An Renovierung wären z.B. zu tapezieren, oder zu streichen. Zur Wohnung gehört ein Keller Die Wohnung verfügt über eine komplett neues Wasserleitungssystem, welches am Ende des Gebäudes gerade noch fertig gestellt wird.

Mehr unter www.neckarimmo.de!
shareDiese Immobilie teilen

Standort

Adresse 74321 Bietigheim-Bissingen
DEU

Flächen und Räume

Zimmer3
Schlafzimmer2
Badezimmer1
Wohnflächeca. 64 m²
Wohneinheiten6

Kosten und Mieten

Kaufpreis179.000 €
Heizkosten enthaltenJa
Provision vom Käufer4,165 % inkl. 19 % MwSt.
MwSt. Satz19 %

Ausstattung

BadDusche
KücheEinbauküche
BödenFliesen, Linoleum
HeizungsartZentralheizung, Fernwärme
Wasch- und Trockenraum1

Bauangaben

DachformFlachdach
BauweiseMassiv
A+ A B C D E F G H
0 25 50 75 100 125 150 175 200 225 >250
keyboard_arrow_up
112
kWh/(m²a)

Energieausweis

ArtVerbrauchsausweis
Gültig bisFebruar 2029
Verbrauchskennwert112
Warmwasser enthalten1
Primärer EnergieträgerGas
WertklasseD
Ausstellungsdatum21.02.2019
Jahrgang2014

Lage

Diese Wohnanlage befindet sich in Bietigheim-Bissingen / Buch. Fußläufig sind alle Einkaufsmöglichkeiten für den täglichen Bedarf, auch Ärzte und Apotheken in ca. 5-10 Minuten erreichbar. Ein Kindergarten ist zu Fuß nur 5 Minuten entfernt, als auch eine Schule. Weiter führende Schulformen sind in Bietigheim-Bissingen ebenfalls vorhanden. Für öffentliche Verkehrsverbindungen ist auch ausreichend gesorgt. Eine Bushaltestelle befindet sich nur 5 Fußminuten entfernt und der Bahnhof ist in 10 Minuten zu Fuß erreichbar. Die beliebte Einkaufsmöglichkeit, das Breuningerland in Ludwigsburg ist nur 10 Autominuten entfernt.

Ausstattung

- Massivbauweise
- Zentralheizung/Fernwärme
- Isolierverglasung
- Rollläden
- Seniorengerechtes Duschbad
- alle Wasserleitungen komplett neu
- Einbauschränke in Küche und Flur
- ein gemeinsam zu nutzender Trockenraum für Wäsche
- ein gemeinsamer zu nutzender Fahrradkeller
- 1 Kellerraum

Sonstiges

Diese Immobilie wird von uns im Alleinauftrag vermakelt. Die Maklerprovision in Höhe von 3,5 % + MwSt. aus dem notariell beurkundeten Kaufpreis ist fällig und zahlbar bei der notariellen Beurkundung des Kaufvertrages oder bei einem Nachweis der Immobilie durch uns. Eine Weitergabe der Daten an Dritte ist nicht gestattet. Verhandlungen und Innenbesichtigungen sind nur in unserer Anwesenheit gestattet. Sollte Ihnen das Objekt bereits anderweitig angeboten worden sein, so teilen Sie uns dies bitte innerhalb von 5 Tagen schriftlich unter Angabe der Quelle mit, ansonsten gilt der Nachweis durch die Firma Neckartal Immobilien GmbH als anerkannt. Alle Angaben beruhen auf Aussagen des Verkäufers, für die Richtigkeit und Vollständigkeit übernehmen wir keine Haftung und schließen ausdrücklich jeglichen Schadensersatz aus.
Bitte haben Sie Verständnis dafür, dass wir aufgrund der Nachweisklausel nur Anfragen mit vollständiger Adress- und Telefonangabe bearbeiten werden! Für Besichtigungen kontaktieren Sie bitte Frau Eva Jung unter 0178-6041360

Ihr Ansprechpartner für diese Immobilie

Frau
Eva Jung

jung@neckartal.immo
+49 (0) 178 / 6041360
+49 (0) 178 / 6041360

Haben Sie Interesse an dieser Immobilie?
Stellen Sie eine Anfrage mit diesem Formular

Ihre Daten werden an Neckartal Immobilien gesendet und dort elektronisch gespeichert, um Ihre Anfrage bearbeiten zu können. Weitere Informationen entnehmen Sie bitte unserer Datenschutzerklärung.
check_circle

Ihre Nachricht wurde erfolgreich verschickt

Sie werden in Kürze von uns hören oder lesen... vielen Dank für Ihr Interesse.

cookie

Wir verwenden Cookies

Cookies sind kleine Datenpakete, die unsere Webseite auf Ihrem Computer speichert. Die meisten davon sind notwendig, damit die Seite funktioniert.

Ein paar Cookies setzen wir ein, um analysieren zu können wie viele Besucher unsere Seite hat und für was sich die Besucher unserer Seite am meisten interessieren. Diese anonymen Daten werden an andere Firmen übermittelt, um dort gezählt und analysiert zu werden. Für diese Cookies möchten wir sie um Ihre Zustimmung bitten.

Verarbeitung Ihrer personenbezogenen Daten findet durch Google statt.
Mehr erfahren: Datenschutzerklärung & Nutzungsbedingungen

ANALYSE- UND MARKETING-COOKIES ZUSTIMMEN
Nur notwendige Cookies
close

Schauen Sie sich die Empfehlungsschreiben unserer Kunden an
Zu den Referenzen

Erfahren Sie den Wert Ihrer Immobilie online in wenigen Minuten
Zur Wertermittlung