Grundstück in sonniger und ruhiger Lage von Geislingen!
Wohngrundstück
285.000 €
Kaufpreis
661 m²
Grundstück ca.1176
Objektnummer
Beschreibung
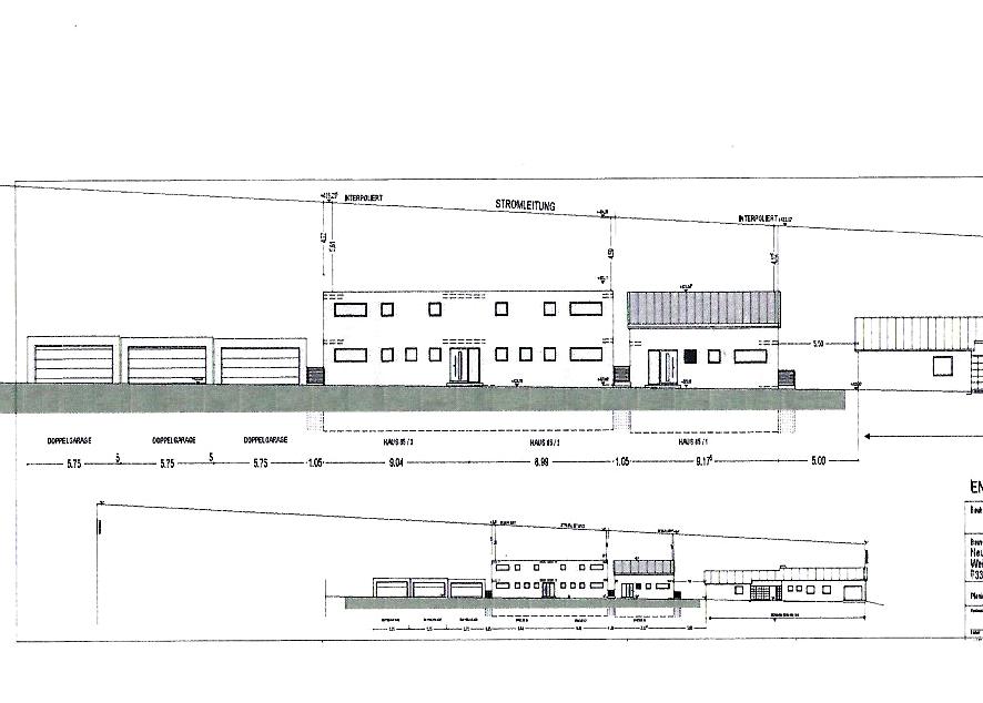
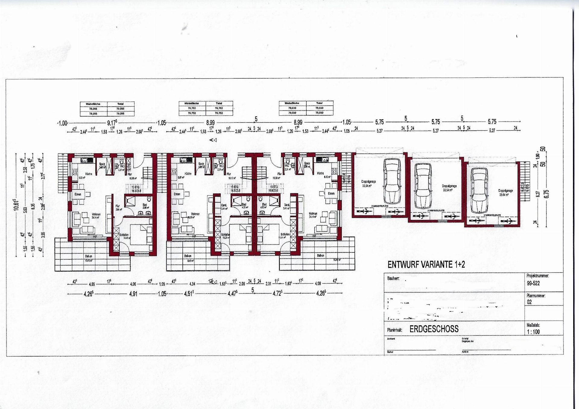
Das Grundstück befindet sich in einer ruhigen 30-iger Zone in sonniger Lage von Geislingen. (Weingärten) . Der Bauplatz, mit Zugang zum Wasser, bietet verschiedene Bebauungsmöglichkeiten die bereits vom Architekten geplant wurden. (Siehe Bilder)
Mehr unter www.neckartal.immo!
Mehr unter www.neckartal.immo!
shareDiese Immobilie teilen
Standort
Adresse | 73312 Geislingen an der Steige DEU |
Flächen und Räume
Grundstücksfläche | ca. 661 m² |
Kosten und Mieten
Kaufpreis | 285.000 € |
Provision vom Käufer | 3,57 % inkl. 19 % MwSt. |
MwSt. Satz | 19 % |
Bauangaben
Bebauung nach | Bebauungsplan vorhanden |
Erschließung | ORTSUEBLICHERSCHLOSSEN |
Lage
Geislingen an der Steige ist eine Stadt in Baden-Württemberg, im Südosten der Region Stuttgart etwa 15 km südöstlich von Göppingen bzw. 27 km nordwestlich von Ulm. Sie ist nach der Kreisstadt Göppingen die zweit größte Stadt des Landkreises Göppingen und bildet ein Mittelzentrum für die umliegenden Gemeinden. Das Grundstück befindet sich im Ortsteil Altenstadt, in einer sehr ruhigen 30 Zone mit Zugang zum Wasser.Schulen, Bushaltestelle und Einkaufsmöglichkeiten wie Bäcker und Metzger sind fußläufig erreichbar.
Sonstiges
Diese Immobilie wird von uns im Alleinauftrag vermakelt. Die Maklerprovision in Höhe von 3,57 % inkl. MwSt. aus dem notariell beurkundeten Kaufpreis ist fällig und zahlbar bei der notariellen Beurkundung des Kaufvertrages oder bei einem Nachweis der Immobilie durch uns. Eine Weitergabe der Daten an Dritte ist nicht gestattet. Verhandlungen und Innenbesichtigungen sind nur in unserer Anwesenheit gestattet. Sollte Ihnen das Objekt bereits anderweitig angeboten worden sein, so teilen Sie uns dies bitte innerhalb von 5 Tagen schriftlich unter Angabe der Quelle mit, ansonsten gilt der Nachweis durch die Firma Neckartal Immobilien GmbH als anerkannt. Alle Angaben beruhen auf Aussagen des Verkäufers, für die Richtigkeit und Vollständigkeit übernehmen wir keine Haftung und schließen ausdrücklich jeglichen Schadensersatz aus.Bitte haben Sie Verständnis dafür, dass wir aufgrund der Nachweisklausel nur Anfragen mit vollständiger Adress- und Telefonangabe bearbeiten werden!
Ihr Ansprechpartner für diese Immobilie

Herr
Günter Häfele
haefele@neckartal.immo
073319461455
015251898782
check_circle
Ihre Nachricht wurde erfolgreich verschickt
Sie werden in Kürze von uns hören oder lesen... vielen Dank für Ihr Interesse.