Geräumiges, freistehendes Haus in sonniger zentraler Lage von Donzdorf mit Garten und großer Scheune
Bauernhaus
199.000 €
Kaufpreis
7
Zimmer147 m²
Wohnfläche ca.700 m²
Grundstück ca.1038
Objektnummer
Beschreibung
Bei diesem Objekt handelt es sich um ein zweigeschossiges Haus mit Mansardengiebeldach. Das Gebäude befindet sich in einem guten historischen Erhaltungszustand.
Es besitzt ein sehr vollständiges Fachwerkgerüst und die Grundrisseinteilungen im Erdgeschoss und erstem Obergeschoss entsprechen noch weitgehend dem historischen Ausgangszustand.
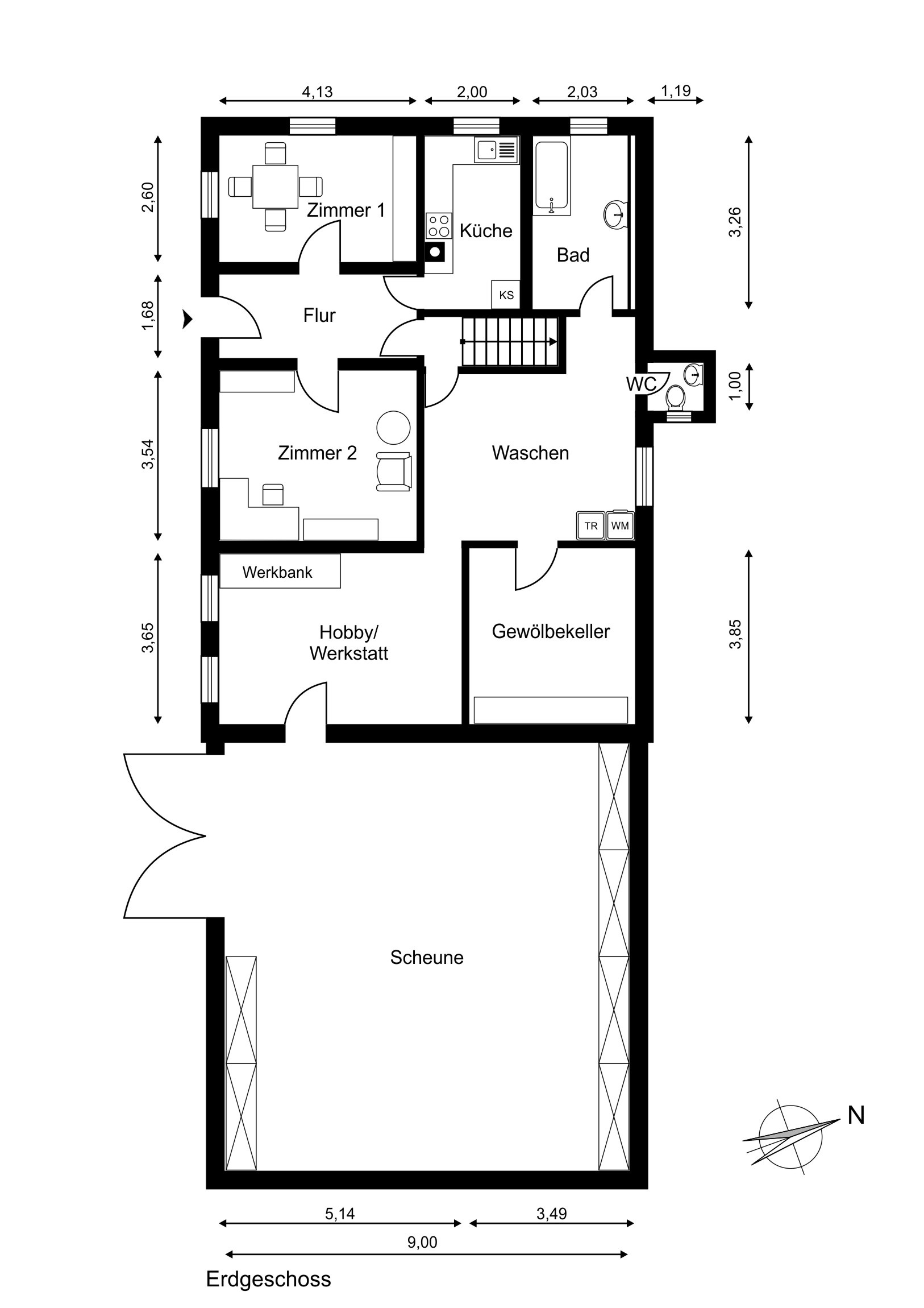
Durch die Haustür kommt man ins EG, dort befinden sich, zwei Zimmern, Küche, Tageslichtbad , Werkstatt und Gewölbekeller.
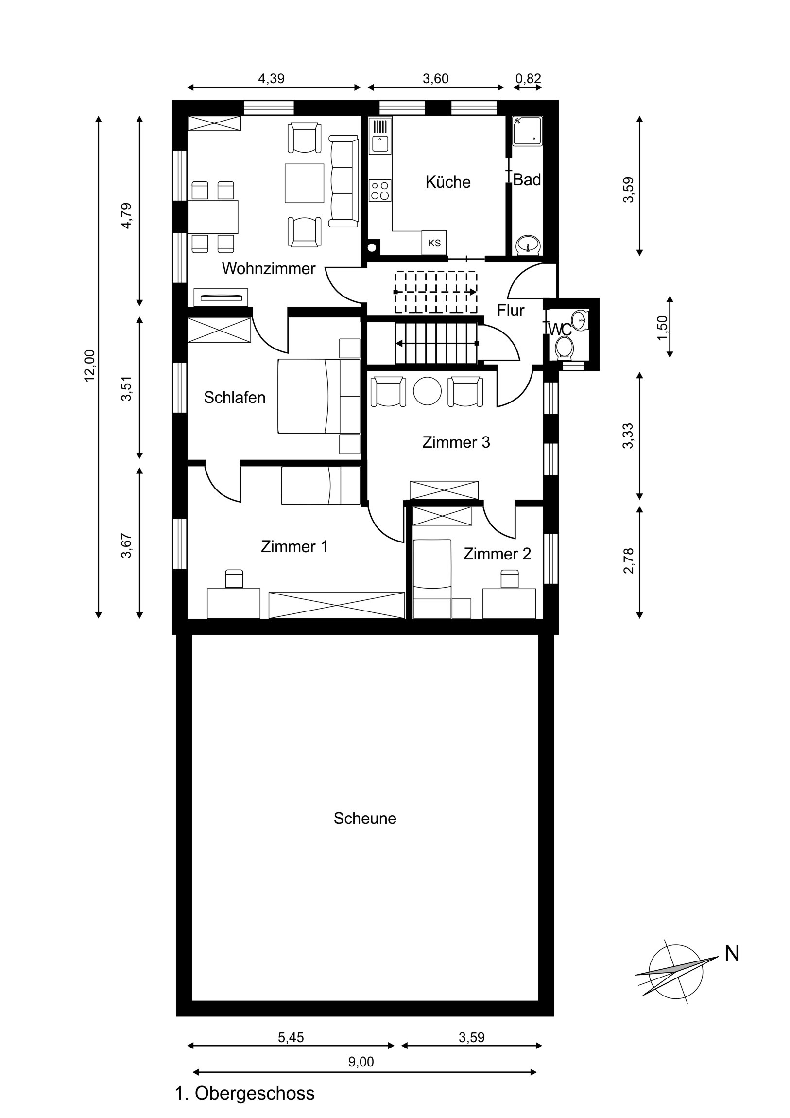
Durch die Haupt-Haustür im 1.OG kommt man zur Küche, zum Bad mit Dusche, 5 Zimmer, Diele und WC.
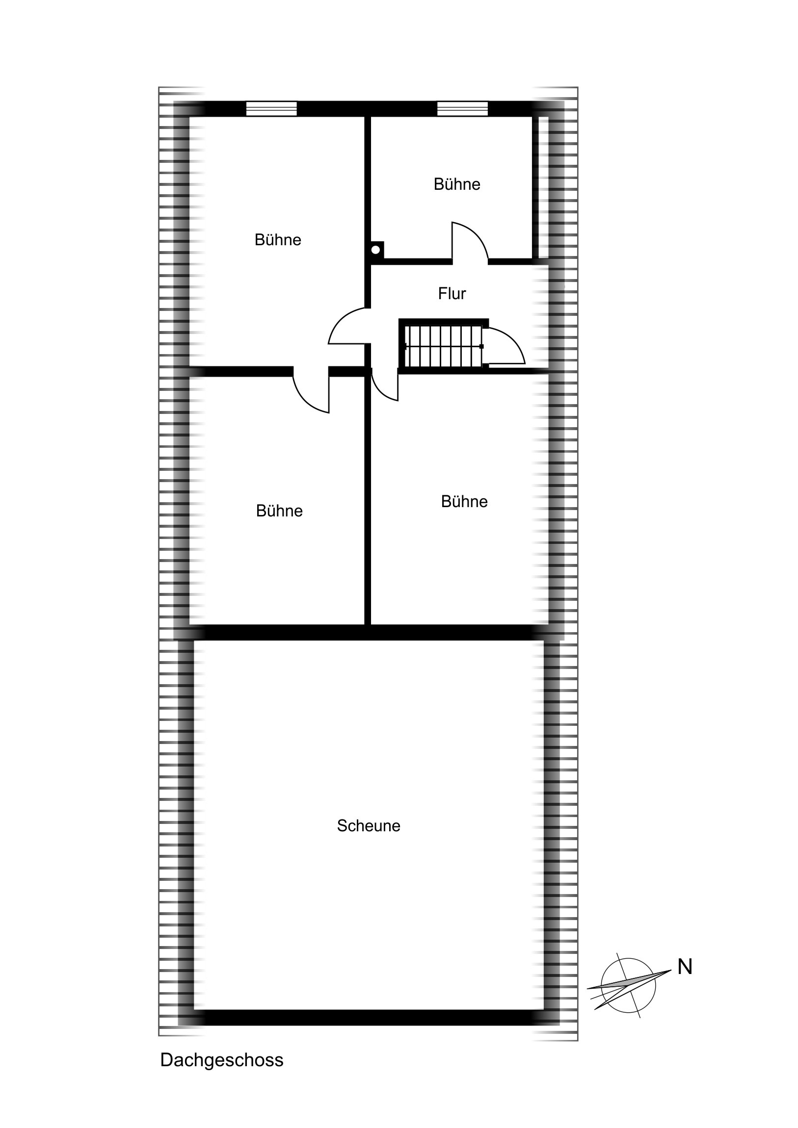
Über eine Treppe gelangt man ins Dachgeschoss, das noch weiter Möglichkeiten zum Ausbau mit ca. 60 m² bietet.
Außerdem verfügt das Gebäude noch über eine große angebaute Scheune, die über 3 Stockwerke geht und eine Grundfläche von 9 mal 9 Metern bietet.
Es besitzt ein sehr vollständiges Fachwerkgerüst und die Grundrisseinteilungen im Erdgeschoss und erstem Obergeschoss entsprechen noch weitgehend dem historischen Ausgangszustand.
Durch die Haustür kommt man ins EG, dort befinden sich, zwei Zimmern, Küche, Tageslichtbad , Werkstatt und Gewölbekeller.
Durch die Haupt-Haustür im 1.OG kommt man zur Küche, zum Bad mit Dusche, 5 Zimmer, Diele und WC.
Über eine Treppe gelangt man ins Dachgeschoss, das noch weiter Möglichkeiten zum Ausbau mit ca. 60 m² bietet.
Außerdem verfügt das Gebäude noch über eine große angebaute Scheune, die über 3 Stockwerke geht und eine Grundfläche von 9 mal 9 Metern bietet.
shareDiese Immobilie teilen
Standort
Adresse | 73072 Donzdorf DEU |
Flächen und Räume
Zimmer | 7 |
Wohnfläche | ca. 147 m² |
Nutzfläche | ca. 108 m² |
Grundstücksfläche | ca. 700 m² |
Kellerfläche | ca. 45 m² |
Dachbodenfläche | ca. 60 m² |
Etagen | 2 |
Kosten und Mieten
Kaufpreis | 199.000 € |
Provision vom Käufer | 3,57 % inkl. 19 % MwSt. |
MwSt. Satz | 19 % |
Ausstattung
Ausstattung | Standard |
Bad | Badewanne, Fenster für Tageslicht |
Wasch- und Trockenraum | 1 |
Unterkellert | Teil |
Bauangaben
Zustand | Sanierungsbedürftig |
Denkmalgeschützt | Ja |
Dachform | Walmdach |
A+ | A | B | C | D | E | F | G | H |
0 | 25 | 50 | 75 | 100 | 125 | 150 | 175 | 200 | 225 | >250 |
keyboard_arrow_up
172
kWh/(m²a)
172
kWh/(m²a)
Energieausweis
Art | Bedarfsausweis |
Gültig bis | Mai 2034 |
Endenergiebedarf | 172 kWh/(m²a) |
Wertklasse | F |
Ausstellungsdatum | 31.05.2024 |
Jahrgang | 2014 |
Lage
Das Haus liegt in einer zentralen aber doch ruhigen Lage von Donzdorf.Der Ort verfügt über vielfältige Einkaufsmöglichkeiten des täglichen Bedarfs. Supermärkte, Bäcker, Metzger, Ärzte und Apotheken sowie verschiedene Restaurants befinden sich in unmittelbarer Nähe. Schulen und Kindergärten sind fußläufig erreichbar. Sehr kurze Wege zur Busstation.
Ausstattung
- Isolierglasfenster im OG.- Tageslichtbad
- 380 V Anschluss
- Neuer Elektro-Zählerkasten
- Schöner Garten
- Werkstatt
- Große Scheune
- Geräumige Zimmer
- Gewölbekeller
- Ruhige und zentrale Lage
Sonstiges
Diese Immobilie wird von uns im Alleinauftrag vermakelt. Die Maklerprovision in Höhe von 3,57 % inkl. MwSt. aus dem notariell beurkundeten Kaufpreis ist fällig und zahlbar bei der notariellen Beurkundung des Kaufvertrages oder bei einem Nachweis der Immobilie durch uns. Eine Weitergabe der Daten an Dritte ist nicht gestattet. Verhandlungen und Innenbesichtigungen sind nur in unserer Anwesenheit gestattet. Sollte Ihnen das Objekt bereits anderweitig angeboten worden sein, so teilen Sie uns dies bitte innerhalb von 5 Tagen schriftlich unter Angabe der Quelle mit, ansonsten gilt der Nachweis durch die Firma Neckartal Immobilien GmbH als anerkannt. Alle Angaben beruhen auf Aussagen des Verkäufers, für die Richtigkeit und Vollständigkeit übernehmen wir keine Haftung und schließen ausdrücklich jeglichen Schadensersatz aus.Bitte haben Sie Verständnis dafür, dass wir aufgrund der Nachweisklausel nur Anfragen mit vollständiger Adress- und Telefonangabe bearbeiten werden!
Ihr Ansprechpartner für diese Immobilie

Herr
Günter Häfele
haefele@neckartal.immo
073319461455
015251898782
check_circle
Ihre Nachricht wurde erfolgreich verschickt
Sie werden in Kürze von uns hören oder lesen... vielen Dank für Ihr Interesse.